REQUEST A TOUR If you would like to see this home without being there in person, select the "Virtual Tour" option and your agent will contact you to discuss available opportunities.
In-PersonVirtual Tour

$ 295,000
Est. payment /mo
Price Dropped by $30K
963 Lozier LN Medford, OR 97501
64,033 SqFt
UPDATED:
Key Details
Property Type Vacant Land
Sub Type Residential Lots
Listing Status Active
Purchase Type For Sale
Square Footage 64,033 sqft
Price per Sqft $4
MLS Listing ID 220192085
Annual Tax Amount $1,918
Lot Size 1.470 Acres
Acres 1.47
Lot Dimensions 1.47
Property Sub-Type Residential Lots
Property Description
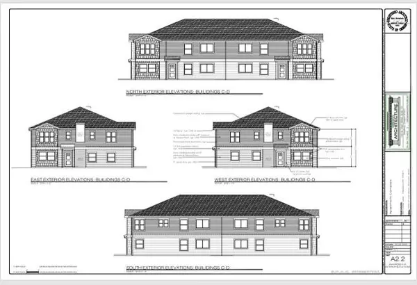
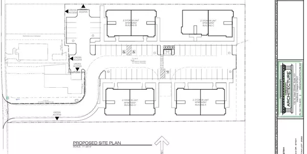
Fantastic 32 unit multifamily approved project. Discover the perfect investment opportunity with this 1.47-acre lot of flat, buildable land, ideal for multi-family residential development and in a quickly growing neighborhood. This prime property, zoned MFR-30 currently has development and site plan approval for a 32 unit project consisting of four 8 Plexes. It also includes a floor plan layout and building elevations streamlining your path to construction. Don't miss out on the chance to bring your vision to life on this versatile and ready-to-build development property.
Location
State OR
County Jackson
Exterior
Utilities Available None
Garage No
Building
Water None
Schools
High Schools North Medford High
Others
Senior Community No
Acceptable Financing Cash, Conventional
Listing Terms Cash, Conventional
Special Listing Condition Standard

Listed by eXp Realty, LLC






